On Lot 2, we’ve completed all items put forth by planning and building departments and will be obtaining occupancy certificate this week while we prepare to close escrow with the buyers. Lot 3 is on the market and we are conducting tours and holding regular open houses. We have had several offers and have many disclosure packages out. Tomorrow we will be price correcting to $5.65M and we will keep you posted on any and all activity.
Interested in learning more about this home?
Video
Tour the Home in 3D
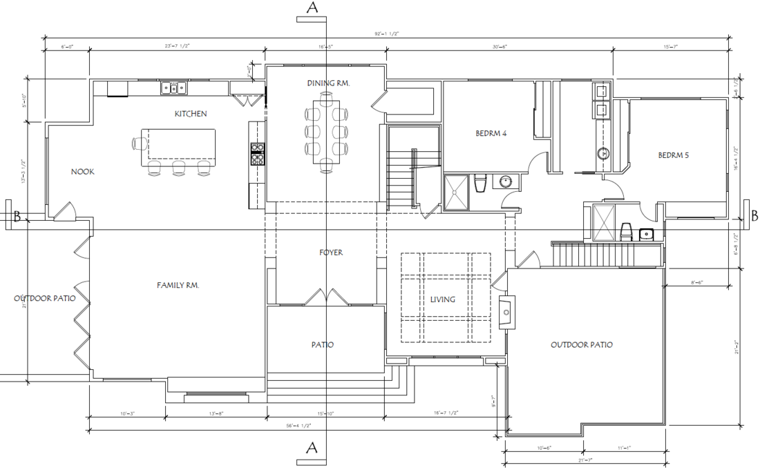
Floor Plans
- First Floor
- Second Floor
Materials Selection
Interested in learning more about this home?
Construction Updates
On Lot 1, we received building final and occupancy last week. Since then, we have been working with the buyer to make sure the home is up to their satisfaction prior to closing escrow.
On Lot 2, we are approximately two weeks away from calling for final inspection. We hope to be able to close escrow soon after occupancy certificate.
On Lot 3, we have building final inspection scheduled for next week and are going to stage and bring the house as quickly as occupancy is obtained.
Lot 1 is now complete and is awaiting final inspection. We are waiting on PG&E to pull both gas and electric service, and for the Town of Los Altos Hills to issue occupancy certificate before being able to close escrow on the property. Lot 2 interior and exterior are approximately one month from completion and subsequent close of escrow. On Lot 3, we are completing the interior and exterior by April 11th, in hopes of being able to stage, list, and bring the house to market by middle of April.
Lot 1, the only things pending are utitlities and approval from Los Altos Hills. Over the next few weeks we'll be completing punch list items on the interior, scheduling and coordinating final inspections, and wrapping up the last of the landscaping.
Lot 2 and lot 3, concrete driveway is now poured. Interiors for both of the homes are approximately at the same stage. We are pushing to have both interiors and exteriors complete by the end of this month.
Once again Lot 2 is in contract and will close upon occupancy certificate. For Lot 3, we have a stageing date at the end of this month in order to bring the property to market.
On all three lots, PG&E remains the longpole in getting occupancy cerrtificate, and we are doing evertyhing we can to expidite the process.
On the three homes, the site retaining walls are making good progress. The utilties have not yet been pulled. We are currently waiting on inspections from PG&E. On Lot 1, the interior is complete. On Lot 2 and Lot 3, the cabinet installation, flooring and trim are done. The stairs, handrail, countertops and finish trim on the electrical and plumbing are to follow.
On Lot 1, the interior is now complete with the exception of the interior staircase and railings. On Lot 2 and Lot 3, the interior trim is nearly complete, exterior facade, tile and hardwood are making progress. On the exterior, the driveway retaining wall piers have been inspected and we are working to schedule concrete delivery. The utilities are about 75% complete and we will be having our second PG&E inspections this coming week.
On Lot 1, the interior is nearly complete with baseboard being installed and touch-up being wrapped up. Lot's 2 and 3 remain a couple months behind Lot 1. The cabinets are now installed, flooring is being delivered, and paint is complete. Regarding the site work, the driveway retaining walls are making progress with piers now drilled and reinforcement being delivered. The utilities are about 50% complete and we will be having our first PG&E inspections this coming week.
On Lot 1, the interior is nearing completion. Flooring, tile, and fixtures have all been installed. We will be completing baseboard installation and touchups over the coming weeks. On the exterior, the driveway retaining walls are underway and utility work is making connections in the street. On Lot 2, the interior cabinets are installed, tile is making progress, and flooring will be the next item to be installed. On Lot 3, interior paint is complete, trim is installed, and cabinet installation is about to begin. On the exterior, retaining walls for the shared driveway is making progress and utility work is underway.
On Lot 1, the cabinet island has now been stained and flooring material is being stocked to acclimate. The flooring installation will start next week. Lot 2 interior paint is almost complete upstairs, tile is delivered, and cabinet installation is nearing completion. The scaffolding is erected and we are working on lath as we prepare for stucco. Lot 3 priming of ceilings and walls are almost complete. The interior trim is also making progress. The exterior is being prepped for the last coat of stucco. For the site work on the exterior, the drainage system is being worked on and will be followed closely by the utilities.
Lot 1 fixtures are now installed and the home is being prepped for flooring installation. Lot 2 interior paint is underway and cabinets have delivered and will be installed over the coming week. We will also be starting to scaffold the exterior of the house as we prepare to complete exterior finishes. Lot 3 drywall is nearly complete and priming of walls will commence shortly.
Lot 1 continues to move along quickly. Countertops are installed, backsplashes are complete, and painting is nearing completion. Lot 2 priming is underway, bathrooms are being prepped for tile, and drainage is being completed on the exterior so we can scaffold the home and begin stucco. Lot 3 drywall work is progressing, the roof material is loaded, and the exterior patio is ready to be poured. On the exterior of the 3 homes, we have completed all grading and we are currently working on the drainage for the site.
Magdalena Lot 1 continues to progress and is the furthest along of the three homes. The interior tile is done with the exception of the backsplashes, interior paint is progressing and will be closely followed by the electrician to set fixtures. Lot 2 drywall is now complete and the painter is working to prime the house. We are working to get cabinet delivery scheduled and begin tile work. On Lot 3, the roof has been loaded with the tile, the back patio is being prepared to be poured, and drywall work is coming along.
The site work is also making progress as the grading contractor is working his way out of the site, starting with Lot 1.
On Magdalena Lot 1 exterior, painting is nearing completion, roofing is done and gutters are being installed. On the interior, tile is complete in the bathrooms, trim is almost done, and the painter is progressing nicely. On Lot 2, drywall finishing is completing, interior doors are being installed and we are preparing for tile. On Lot 3, the stucco first coat is done, drywall is being taped, and the roof is being prepped for installation. In conjunction to the homes, we are also working to schedule items for the site work (utilities, drainage, landscaping, etc.). We are hoping to work on that in parallel to the home construction completing.
Magdalena Lot 1 priming just completed and we will begin applying color to the interior walls next week. We will also start installing interior door and window trim, and door installation. On the exterior, we are on our last coat of stucco and will soon start painting. Magdalena Lot 2 drywall hanging is complete and they will begin tape and finishing next week. Magdalena Lot 3 insulation is complete and drywall has been stockpiled. We will begin hanging drywall next week.
Magdalena Lot 1 drywall is finished. We will be beginning paint next week and will be starting our last layer of stucco on the exterior next week as well. Magdalena Lot 2 drywall has just started. We will be continuing drywall over the next couple weeks and will be working on lath and stucco as well. Magdalena Lot 3 drywall is about to begin. We will finish up the last of the insulation and then beginning drywall and exterior lath and stucco.
We are also working to finish up the last of the property website pages which can be found here:
https://www.arondevelopers.com/properties/10800-magdalena
https://www.arondevelopers.com/properties/10880-magdalena
https://www.arondevelopers.com/properties/10888-magdalena
Please feel free to share with family and friends.
Magdalena homes are coming along nicely. On Lot 1, we are finishing drywall and working on the first layer of stucco. On Lot 2, all-trades inspection has passed, roofing is complete, and the home is insulated. We will be working on drywall and lath next week. On Lot 3, we will begin insulation next week, preparing the roof for tile, followed closely by drywall.
On Lot 1, we are currently awaiting all trades inspection prior to proceeding with drywall. On the exterior, we are ready to stucco but are waiting until the drywall is hung to prevent cracking. On Lot 2, plumbing and electrical are complete. HVAC is underway and fire sprinkler will be starting next week. On Lot 3, electrical and plumbing are underway. On all three lots, we are working with the City and PG&E to complete utility approval process. We are also working with the listing agent on a go-to-market strategy for pre-selling the three homes.
On Lot 1, we have completed all rough in and are ready for all trades inspection for next week. Roofing is almost done and we are getting ready to erect scaffolding in preparation for stucco. On Lot 2, windows are about 50% installed and we are roughing in electrical and plumbing. On Lot 3, we passed shear inspection today, and are preparing to install windows and begin rough-in.
Magdalena Lot 1 framing is now complete, windows and doors have been installed, mechanical, electrical and plumbing rough-in is nearing completion, and the roofing material is loaded in preparation to begin the installation. Lot 2 shear inspection passed today and we will begin window and door installation next week. Lot 2 framing was slightly delayed as the team made the decision to swap the master bedroom "wing" with the guest "wing" of the house in order to best optimize for the breathtaking views. Lot 3 framing is going to be the last to be complete due to the complex circular roof framing design.
Lot 1 framing has now surpassed the other two lots. They are currently sheathing the roof with preparation for framing inspection next week. Lot 2 roof trusses were delivered today and will be installed next week. Lot 3 circular entry is providing a challenge to the framing crew but they will be finishing the second story wall framing next week and will then start roof framing.
Framing is in full swing on all three lots. Lot 1 slab and retaining wall are now poured and the first-floor framing is nearly complete. We are currently placing the second-floor joists and will sheathing and standing walls for the second floor starting next week. Lot 2 second-floor framing is complete and we are now just waiting on the pre-fabricated roof trusses to arrive before wrapping up framing. On Lot 3, the floor joists have been replaced per manufacturer recommendations and the first-floor walls are nearly complete.
On Lot 1, all concrete piers have been poured. The plumbing and waterproofing are complete for the slab and the concrete crew is currently forming rebar in hopes of being able to pour next week. On Lot 2, the first-floor wall framing is almost complete. On Lot 3, due to extended moisture exposure, the floor joists are having to be completely replaced. This is due to the manufacturer raising concern over the expansion of the plywood. While a difficult decision to backtrack and replace, we always try to deliver the best quality end product.
On Lot 1, we have all the piers prepared to be poured. In order to fight the rain, we brought a vacuum truck to site in order to pump the water that has accumulated over the course of the last few storms. Rebar cages have been placed into the 15' piers and are ready for concrete on Monday. The next step will be the retaining walls, and then the slab. On Lot 2, we are almost complete will all bottom plate detail. Starting tomorrow, we will begin wall framing. On Lot 3, we just completed pumping all the rain water out of the crawlspace. On Monday we will pour the rat slab followed closely by the framing.
On Lot 1, the waterproofing and backfill of the garage retaining walls are now complete. We have started drilling the piers for the first-floor slab and are making a push to try to complete pouring by this week. For Lot 2, we have completed pouring the first-floor retaining walls and are ready to now begin framing. On Lot 3, we are completing the crawlspace preparation prior to completing subfloor and framing.
We have poured all of the garage retaining walls on Lot 1 and the driveway is operational. We will begin pier drilling for the first floor as soon as the pad has sufficiently dried out. On Lot 2, the slab foundation is complete and we will begin forming the retaining walls next week. Lot 3 floor framing is complete and plumbing is underway. As soon as underfloor rough-in is complete, we will sheath the first floor.
Magdalena property is progressing very nicely. On Lot 3 we have completed floor framing and are preparing for underfloor plumbing and mechanical. For Lot 2, we have completed exterior formwork and have passed subgrade plumbing inspection. We have backfilled and are doing subgrade preparation for our slab foundation. Lot 1 slab has been poured and the team is currently forming the garage/basement level retaining walls.
Magdalena property is progressing very nicely. On Lot 3 we have completed floor framing and are preparing for underfloor plumbing and mechanical. For Lot 2, we have completed exterior formwork and have passed subgrade plumbing inspection. We have backfilled and are doing subgrade preparation for our slab foundation. Lot 1 slab has been poured and the team is currently forming the garage/basement level retaining walls.
All three lots are progressing quickly. The rain has provided a little bit of a challenge, but we are actively pushing forward. For Lot 1, the garage level is almost complete and the team is currently preparing the subgrade on the first level. On Lot 2, we have poured approximately half of the exterior footings. On Lot 3, all piers have been poured and we are currently forming the grade beams.
